Sold STC
Video Tour
£250,000 Guide Price

Ann Street, Kendal, LA9

  • Ref: 0a7d4182-d522-4393-a3e7-07278ee8580a
  • Availability: Sold STC
  • Bedrooms: 2
  • Bathrooms: 1
  • Reception Rooms: 2
  • Council Tax Band: B
  • Tenure: Freehold

Key Features

  • Spacious Victorian 2 bedroom house
  • Beautifully presented
  • EPC: D


Full property description


This beautifully presented Victorian two bedroom terraced house offers an exceptional blend of period charm and modern convenience, making it an ideal choice for those seeking stylish and comfortable living in a central location. The property boasts a striking period stone facade, which sets the tone for the character and elegance found throughout the home. Upon entering, you are greeted by a welcoming hallway that leads to a generously proportioned living area, featuring large windows that flood the space with abundant natural light and create a bright, airy atmosphere. The modern kitchen is thoughtfully designed, equipped with high-quality integrated appliances and ample storage, making it both practical and pleasing for every-day use. Both bedrooms are spacious with the principal bedroom benefitting from additional light and a peaceful ambience. The bathroom is finished with contemporary fittings that complement the overall aesthetic of the home. Throughout the property, original features blend seamlessly with modern updates, ensuring a comfortable and stylish environment. The house is ideally situated in a central location, placing a wide range of amenities, shops, cafes, and transport links within easy reach, perfect for those who value convenience and connectivity. Additional features include a private courtyard and a versatile workshop, providing extra space for hobbies or storage needs. This exceptional property combines the timeless appeal of Victorian architecture with the benefits of modern living, offering a unique opportunity to acquire a home that is both practical and full of character. Whether you are a first-time buyer, a professional couple, or looking to downsize without compromising on style, this terraced house is sure to impress with its thoughtful layout, high-quality finishes, and enviable location. Early viewing is highly recommended to appreciate all that this delightful home has to offer.

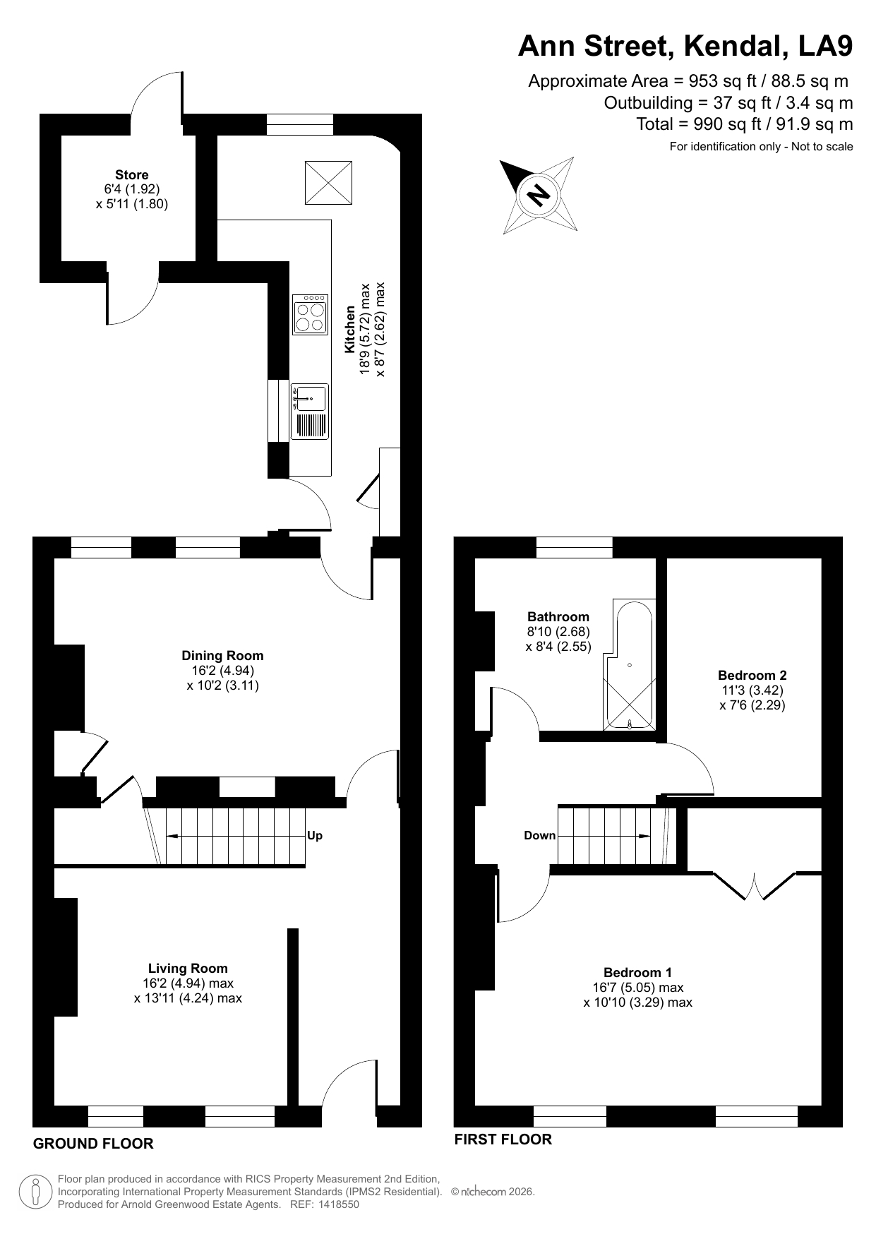
Living Room 13' 11" x 16' 2" (4.24m x 4.94m)

Dining Room 10' 2" x 16' 2" (3.11m x 4.94m)

Kitchen 8' 7" x 25' 0" (2.62m x 7.62m)

Bedroom 1 10' 10" x 16' 7" (3.29m x 5.05m)

Bedroom 2 7' 6" x 11' 3" (2.29m x 3.42m)

Bathroom 8' 4" x 8' 10" (2.55m x 2.68m)

Store 5' 11" x 6' 4" (1.80m x 1.92m)



floorplan

Get in touch

8 & 10 Highgate, Kendal Cumbria, LA9 4SX

Download this property brochure

DOWNLOAD BROCHURE

Try our calculators

Mortgage Calculator

Stamp Duty Calculator

Similar Properties