For Sale
£150,000

Main Street, Flookburgh, LA11

  • Ref: 16ace22c-661e-4444-a3e8-2bdf14021b99
  • Availability: For Sale
  • Bedrooms: 2
  • Bathrooms: 1
  • Reception Rooms: 1
  • Council Tax Band: B
  • Tenure: Freehold
Please provide the property description you would like summarised....
BOOK A VIEWING

Key Features

  • Two Bedroom Terraced House
  • Characterful living room featuring a fireplace and exposed beams
  • Modern kitchen with integrated appliances
  • Conservatory with garden access
  • Modern bathroom with walk-in shower and bath-tub
  • Built-in shelving and storage throughout the property
  • Ample natural light / Wooden flooring throughout
  • Rear paved garden
  • Energy Efficiency Rating C


Full property description


Please provide the property description you would like summarised.

This beautifully presented two bedroom terraced house offers a harmonious blend of period charm and modern convenience. The property is thoughtfully arranged to maximise space and comfort, making it an ideal home for professionals, couples, or small families seeking a stylish yet practical living environment.

Upon entering, you are greeted by a characterful living room that immediately impresses with its exposed beams and feature fireplace. The room exudes warmth and personality, providing a welcoming space for both relaxing nights in and entertaining guests. Wooden flooring extends throughout the property, enhancing the sense of continuity and adding a touch of timeless elegance to each room.

The modern kitchen is well-appointed with a range of integrated appliances, ensuring a seamless cooking experience. Sleek cabinetry and quality finishes complement the contemporary design, while ample worktop space caters to all your culinary needs. Adjoining the kitchen is a conservatory (with direct access to the rear paved garden), which serves as a versatile space for dining, a home office, or a tranquil reading nook. Large windows flood the area with natural light, creating an inviting atmosphere throughout the day.

Upstairs, you will find two well-proportioned bedrooms, each benefitting from built-in shelving and clever storage solutions to maximise floor space. Both rooms are bright and airy, with wooden flooring continuing the home’s cohesive aesthetic. The modern bathroom features a walk-in shower and a separate bath-tub, catering to both quick morning routines and leisurely evenings. Contemporary fixtures and neutral tiling provide a sleek, spa-like ambience.

Throughout the property, built-in shelving and storage have been thoughtfully integrated, ensuring a clutter-free living environment. The abundance of natural light, combined with the tasteful décor and quality finishes, creates a sense of space and serenity.

The location (details available upon request) is convenient for local amenities, transport links, and schools, making this property a practical choice for a range of buyers.

This delightful terraced house is a rare find situated within the heart of the village, close to a range of amenities, offering character and comfortable living areas. Early viewing is highly recommended to fully appreciate all that this charming home has to offer.

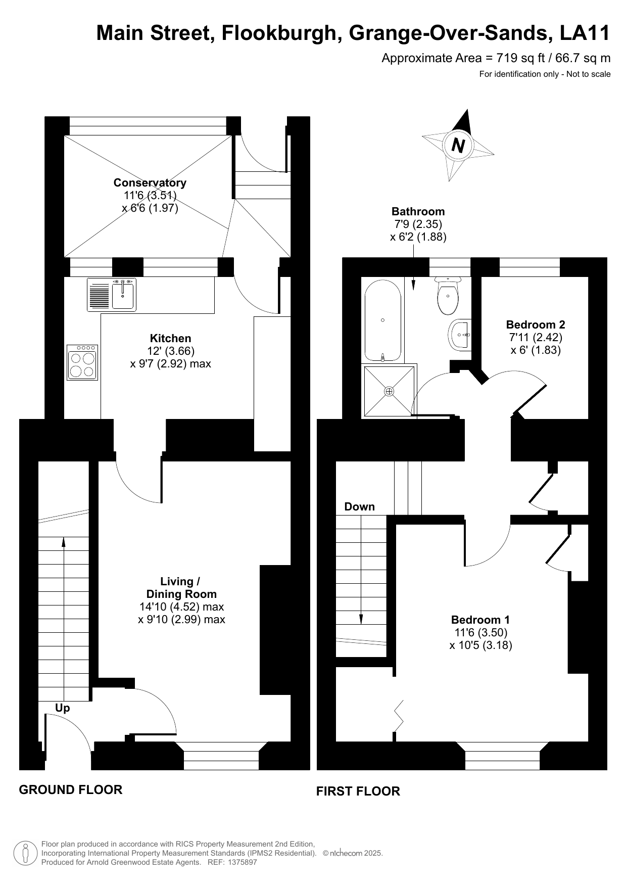
Living / Dining Room 9' 10" x 14' 10" (2.99m x 4.52m)

Kitchen 9' 7" x 12' 0" (2.92m x 3.66m)

Conservatory 6' 6" x 11' 6" (1.97m x 3.51m)

Bedroom One 10' 5" x 11' 6" (3.18m x 3.50m)

Bedroom Two 6' 0" x 7' 11" (1.83m x 2.42m)

Bathroom 6' 2" x 7' 9" (1.88m x 2.35m)



floorplan

floorplan

Get in touch

8 & 10 Highgate, Kendal Cumbria, LA9 4SX
BOOK A VIEWING

Download this property brochure

DOWNLOAD BROCHUREDOWNLOAD BROCHURE

Try our calculators

Mortgage Calculator

Stamp Duty Calculator

Similar Properties