For Sale
Video Tour
£275,000 Guide Price

Stramongate, Kendal, LA9

  • Ref: 21cec1ac-8b81-4d9d-b227-63317c23ad0f
  • Availability: For Sale
  • Bedrooms: 2
  • Bathrooms: 2
  • Reception Rooms: 2
  • Outside Space: Balcony
  • Council Tax Band: F
  • Tenure: Leasehold
BOOK A VIEWING

Key Features

  • Allocated parking
  • Energy Efficiency Rating D


Full property description


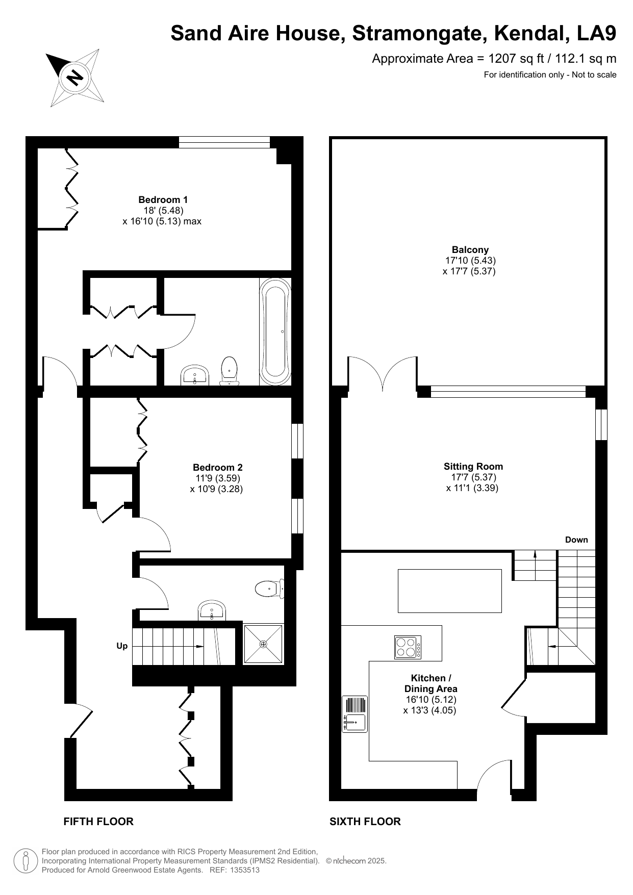
Executive fifth-floor two-bedroom penthouse apartment boasting a private rooftop terrace in the heart of town. This modern abode is laid out over two floors and features a sleek kitchen complete with an island and integrated appliances. Floor-to-ceiling windows bathe the open plan living and dining area in natural light while offering breathtaking views of the surrounding countryside. The property includes contemporary bathrooms with a walk-in shower and bath, ample built-in storage, and wardrobes for convenience. Residents can unwind on the private rooftop terrace, enjoying panoramic vistas of the river and lush landscapes. Allocated parking adds to the convenience of this luxurious urban retreat.

Entrance Hallway

Bedroom 1 with Dressing area and En-Suite 16' 10" x 18' 0" (5.13m x 5.48m)

Bedroom 2 10' 9" x 11' 9" (3.28m x 3.59m)

Bathroom

Stairs lead to the Kitchen / Dining / Lounge

Kitchen / Dining Area 13' 3" x 16' 10" (4.05m x 5.12m)

Sitting Room 11' 1" x 17' 7" (3.39m x 5.37m)

Roof Terrace



floorplan

Get in touch

8 & 10 Highgate, Kendal Cumbria, LA9 4SX
BOOK A VIEWING

Download this property brochure

DOWNLOAD BROCHUREDOWNLOAD BROCHURE

Try our calculators

Mortgage Calculator

Stamp Duty Calculator

Similar Properties